Chesterbrook Gardens Whole House Renovation

Project Size:

2,400 SQFT

Completion Date:

2024
background image

Timeless Elegance in McLean


As the second owners of a custom-built home in McLean, it didn’t take long for our clients to recognize that some significant improvements were needed to truly make the home their own. Our clients wanted the renovation to blend classic design features with modern elements to reflect their elegant yet comfortable style. The main floor renovations touched almost every inch of space, including a major kitchen reconfiguration, two entryways, two staircases, mudroom, laundry room, powder room, living room, primary bathroom, his & hers closets, and refinished floors throughout. 

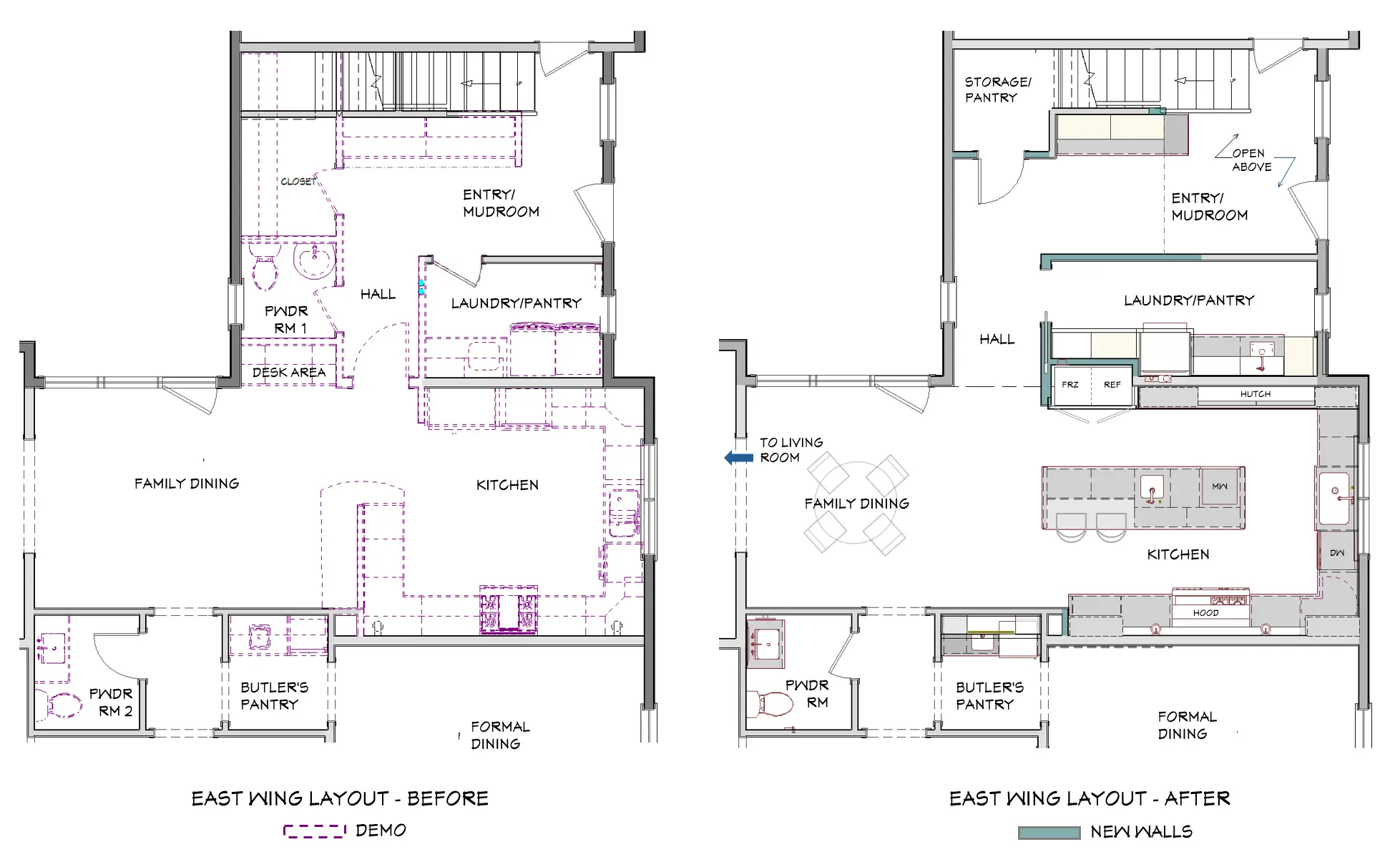
The space that needed the most attention was the kitchen which felt dark, cold, and unwelcoming with its traditional espresso-colored cabinets and stainless steel countertops. A two-level peninsula interrupted flow and connectivity with the adjacent spaces. To have the biggest impact and accommodate the kitchen’s expansion and redesign, we relocated a hallway to an exterior wall allowing natural light to flood in.

Our clients wanted a double-sided island (with seating) in their redesigned kitchen, something their old one lacked. To maintain good circulation, we designed a shallow ‘hutch’ and recessed the paneled refrigerator/freezer, so they are perfectly aligned. The creamy tone of the painted cabinets complements the champagne-stained maple, adding softness and warmth to the space. We incorporated traditional details such as a beadboard backsplash, library sconces, and a Venetian plaster hood, but balanced these with more modern features such as a continuous quartz backsplash, updated hardware, fixtures and lighting. Blending old and new creates a space with a sense of history and character – it feels fresh, modern, and cozy.

The kitchen is a chef’s dream with a suite of professional appliances including a 48” double gas range and separate 24” refrigerator and freezer columns, paneled to integrate seamlessly. Two sinks allow for separate prep and cleaning zones. Open shelves and glass-front cabinets are the perfect way to showcase treasured items and favorite dishware, while hidden accessories keep the cook and kitchen well-organized. Replacing the old peninsula with an island created better flow and connectivity with the adjacent rooms. The kitchen is now brighter and more inviting, and the expanded footprint is appropriately scaled for the home.

Reconfiguring the hallway enabled us to reimagine the entryway, mudroom, laundry room and pantries. We carried the maple floors throughout the new hall and entry, replacing dated travertine tiles. In the previous mudroom a bulkhead intersected the vaulted ceiling so we opted to remove it and open up the stairs to create a brighter more welcoming entry. The mudroom cabinetry was designed with concealed storage in mind which helps keep this drop zone neat and tidy. A wood block benchtop complements the refinished maple floors and new stair rail. In the reconfigured laundry room, handcrafted tiles on the floor and backsplash infuse the space with charm.

An existing butler’s pantry off the formal dining room got a top-to-bottom makeover. We paired moody blue-green cabinets with a stunning Nero Marquina marble countertop and black sink. Brushed brass was used throughout, from the bar faucet to the hardware and mosaic tile accent. A distinctive drink rail gives a nod to the past while the saturated color on the walls, ceiling and trim feels simultaneously contemporary and timeless. Across the hall we updated a powder room with all new fixtures and finishes.

The living room makeover entailed adding custom designed casework and a gorgeously veined marble fireplace surround and hearth. At the formal entryway, we modernized the three-level staircase, painting the stained handrail and newel posts black and replacing fussy iron balusters with white tapered spindles. The lightened maple floors and stairs give the two-story entry an airy feel.

The original bathroom’s traditional style (travertine tile, dark vanities and granite counters) was outdated and didn’t fit with our clients’ timeless, elegant aesthetic. The old bathroom had an awkward layout with two separate vanities on opposite walls. An enclosed shower loomed large in the room and a linen closet took up valuable floor space. To achieve a more thoughtful layout, we shifted the door, removed the linen closet, and reconfigured the design to allow for a generous his and hers double vanity. The LED lit vanity mirrors and striking sconces add a modern touch. The custom linen cabinet, complete with mirrored doors and full-extension drawers, provides more functional storage than the old linen closet.

The shower was reimagined with plentiful glass to bring in the light. We installed multiple showering options that can be used alone or in combination including body sprays, rain head shower, standard and handheld showers. We paired a classic tub filler with a modern freestanding tub which makes the space feel both timeless and current. Replacing dark dated tiles with stunning marble-look porcelain brightens up the entire room. Programmable heated floors provide warmth and comfort and are a luxurious enhancement to any bathroom. Design elements from other rooms were even carried into the custom his and hers closets, achieving a cohesive style throughout the home.

This project was a melding of traditional and modern design elements resulting in unique spaces full of character and charm. The home now exudes warmth and comfort and reflects our clients’ timeless, elegant style.

Project Layout